Réalisations
Les réalisations seront présentées ici prochainement.
En attendant, je vous invite à découvrir ma démarche ou à me contacter pour échanger autour de votre projet.
Réalisations


Extension bois 20 m² – Étude de conception – Bouguenais (44)
Type de projet : Extension de maison individuelle
Client : Étude de conception (non réalisée)
Mission : Étude de conception – implantation, volumétrie et relation au jardin
Le projet
Le projet consiste à prolonger la maison existante par une extension en ossature bois, pensée comme un espace de vie complémentaire.
L’enjeu principal était de proposer une implantation fluide, une volumétrie équilibrée et une relation directe avec l’extérieur, tout en assurant une continuité architecturale avec l’existant.






Proposition de ConceptioN
Étude de conception d’une extension bois de 20 m² visant à créer un nouvel espace de vie ouvert sur le jardin.
Le travail a porté sur l’implantation de l’extension, la cohérence avec le bâti existant et la qualité des apports de lumière naturelle.
État existant (contexte du projet)


Des plans d’intention ont été réalisés dans le cadre de l’étude (non présentés ici).
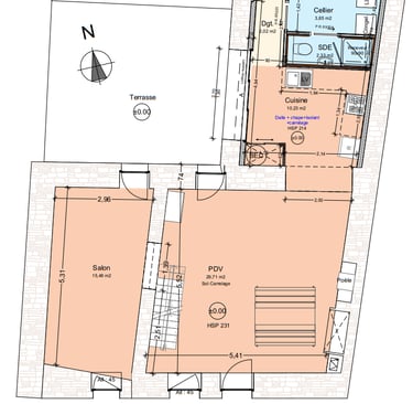
Projection intérieure de l’espace créé (vue depuis l’extension)




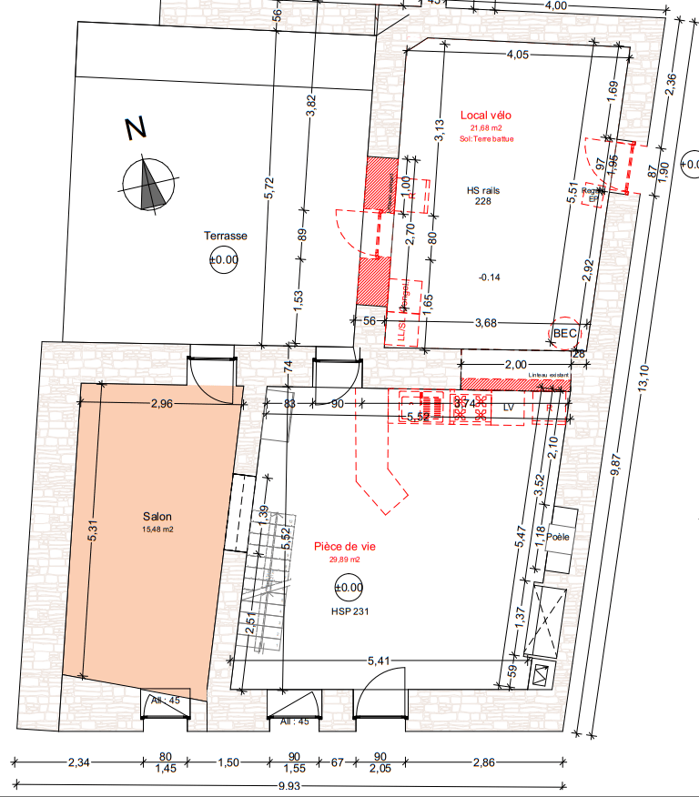
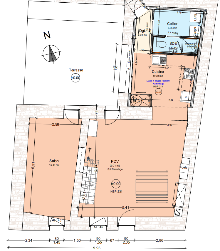
Transformation d’un volume brut en espace de vie – Bouguenais (44)
Type de projet : Rénovation intérieure
Client : Particulier
Mission : Étude de conception – plans et projections
Le projet
Ancien volume en terre battue, non isolé et à faible hauteur sous plafond.
Objectif : créer une cuisine ouverte et une pièce de vie cohérente tout en valorisant les murs en pierres existants.






Plan existant
Plan projet




Transformation d’un volume brut en suite parentale – Bouguenais (44)
Type de projet : Rénovation intérieure
Client : Particulier
Mission : Étude de conception – plans et projections
Le projet
Volume existant destiné à devenir une suite parentale.
Géométrie irrégulière, hauteur sous toiture limitée, lumière à optimiser.






Plan existant
Plan projet


Clarification des circulations
Implantation stratégique de l’escalier
Optimisation des volumes sous rampant
Travail en coupe pour maîtriser les hauteurs, proportions et apports lumineux dans un espace contraint.
Détail de conception : intégration de l’escalier dans un volume contraint.
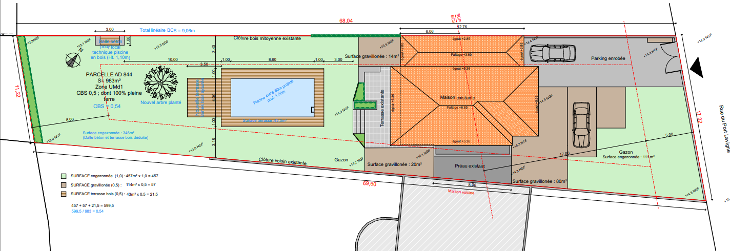
Implantation et conception d’une piscine à Bouguenais (Loire-Atlantique)
Type de projet : Aménagement extérieur – Piscine
Client : Particulier
Localisation : Bouguenais (44)
Mission : Conception + dossier administratif
Contexte
Les propriétaires souhaitaient intégrer une piscine dans un jardin existant tout en préservant l’équilibre architectural de la maison et l’intimité vis-à-vis du voisinage.
Enjeux
Optimiser l’implantation dans un terrain contraint
Respecter les règles d’urbanisme locales
Assurer la cohérence avec le bâti existant
Anticiper les contraintes techniques (accès, réseaux, gestion des eaux)
Mission réalisée
Étude d’implantation
Plans de conception
Modélisation 3D
Élaboration du dossier administratif








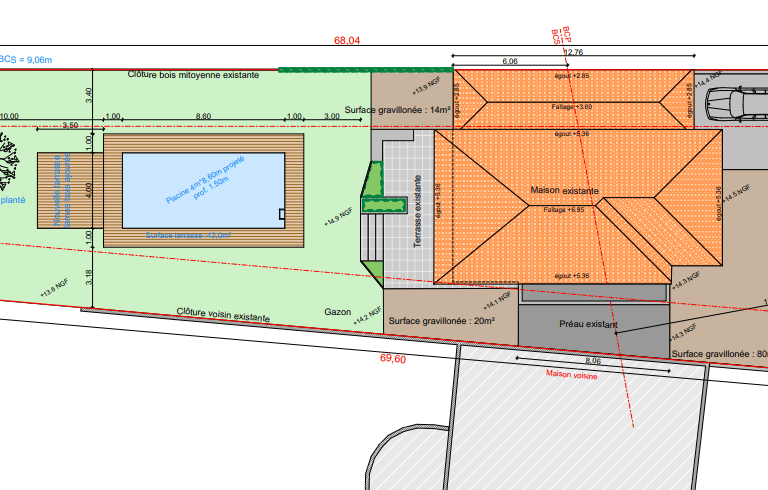
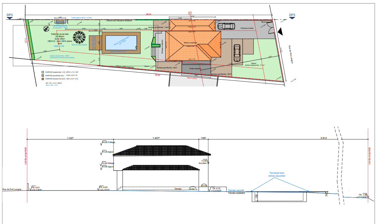
Coupe terrain
Plan masse projeté
État réalisé – après travaux
État avant travaux
Résultat
Une intégration harmonieuse et fonctionnelle, valorisant l’espace extérieur tout en respectant les contraintes réglementaires et techniques.


Vue projetée – Modélisation 3D de phase étude


Concevoir des lieux justes et durables.
Téléphone
© 2026. All rights reserved.



Symbio conception — Pascal Bisaillon (EI)
